CK tank 360 l
| Použití: Minipivovar |
CK tank 360 l je cylindro-konická nerezová nádoba určená pro reálný pivovarský provoz. Tank umožňuje přesné řízení teploty i tlaku a je připraven na napojení na řídicí systém E-Brew, včetně automatického hradicího ventilu řízeného přímo z varny nebo aplikace.
Díky chlazenému plášti válce i kužele lze přesně řídit jednotlivé fáze kvašení. Tlakové provedení (dle konfigurace) umožňuje řízené dokvašování pod tlakem, práci s CO₂ a minimalizaci oxidace. Automatický hradicí ventil řízený přes E-Brew zajišťuje stabilní protitlak bez zásahu obsluhy.
Vnitřní povrch tanku je plně hladký s drsností Ra ≤ 0,4 µm, což splňuje profesionální hygienické standardy, výrazně usnadňuje CIP mytí a minimalizuje riziko usazování nečistot a mikroorganismů.
Tank je vybaven integrovaným CIP mycím systémem a je koncipován jako součást modulární technologie, kterou lze centrálně řídit, monitorovat a postupně rozšiřovat – od základního kvašení až po plně automatizovaný provoz.
Jeden tank. Jeden proces. Plná kontrola.
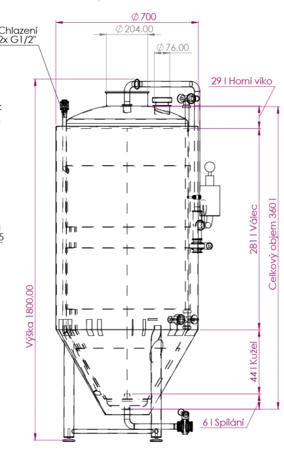
Technická specifikace – CK tank 360 l
Typ: cylindro-konický tank (CK)
Celkový objem: 360 l
Vnější průměr: 700 mm
Výška : 1800 mm
Použití: kvašení, dokvašování, ležení piva
Konstrukce
Materiál: nerezová ocel AISI 304
Provedení: svařovaná cylindro-konická konstrukce
Vnitřní povrch: hladký, hygienický, drsnost Ra ≤ 0,4 µm
Dno: kuželové, určené pro odkalení a sběr kvasnic
Izolace
Typ izolace: PUR pěna
Tloušťka izolace: 50 mm
Rozsah: válec + kužel
Funkce: stabilní teplotní režim, omezení tepelných ztrát a kondenzace
Chlazení a teplota
Chlazení: chladicí plášť na válci i kuželu
Řízení teploty: přesná regulace během celého kvašení
Příprava pro řízení: možnost napojení na systém E-Brew
Tlak a CO₂
Tlakové provedení: ano (dle konfigurace)
Práce s CO₂: umožňuje řízené dokvašování pod tlakem
Ventily a základní výbava
výpust piva
výpust kvasnic
vzorkovací ventil
CO₂ ventil
pojistný ventil
Čištění
Mytí: integrovaná CIP mycí hlavice
Určení: chemická sanitace bez nutnosti demontáže
Volitelná výbava (příplatkové položky)
Automatický hradicí ventil:
řízený přes systém E-Brew, umožňuje automatické řízení tlaku bez zásahu obsluhy
Stavoznak:
vizuální kontrola hladiny piva v tanku
Napojení na E-Brew:
monitoring teploty a tlaku, záznam dat, vzdálený dohled
Soubory ke stažení budou doplněny.





